El proyecto parte de la idea de crear un espacio dedicado a la salud mental infantil, respondiendo a la falta de este tipo de centros en la zona.
La policlínica se enfoca en las especialidades de psicología, psiquiatría, nutrición y psicopedagogía, ofreciendo además un área para terapias grupales y actividades que fomenten la expresión y la confianza de los niños.
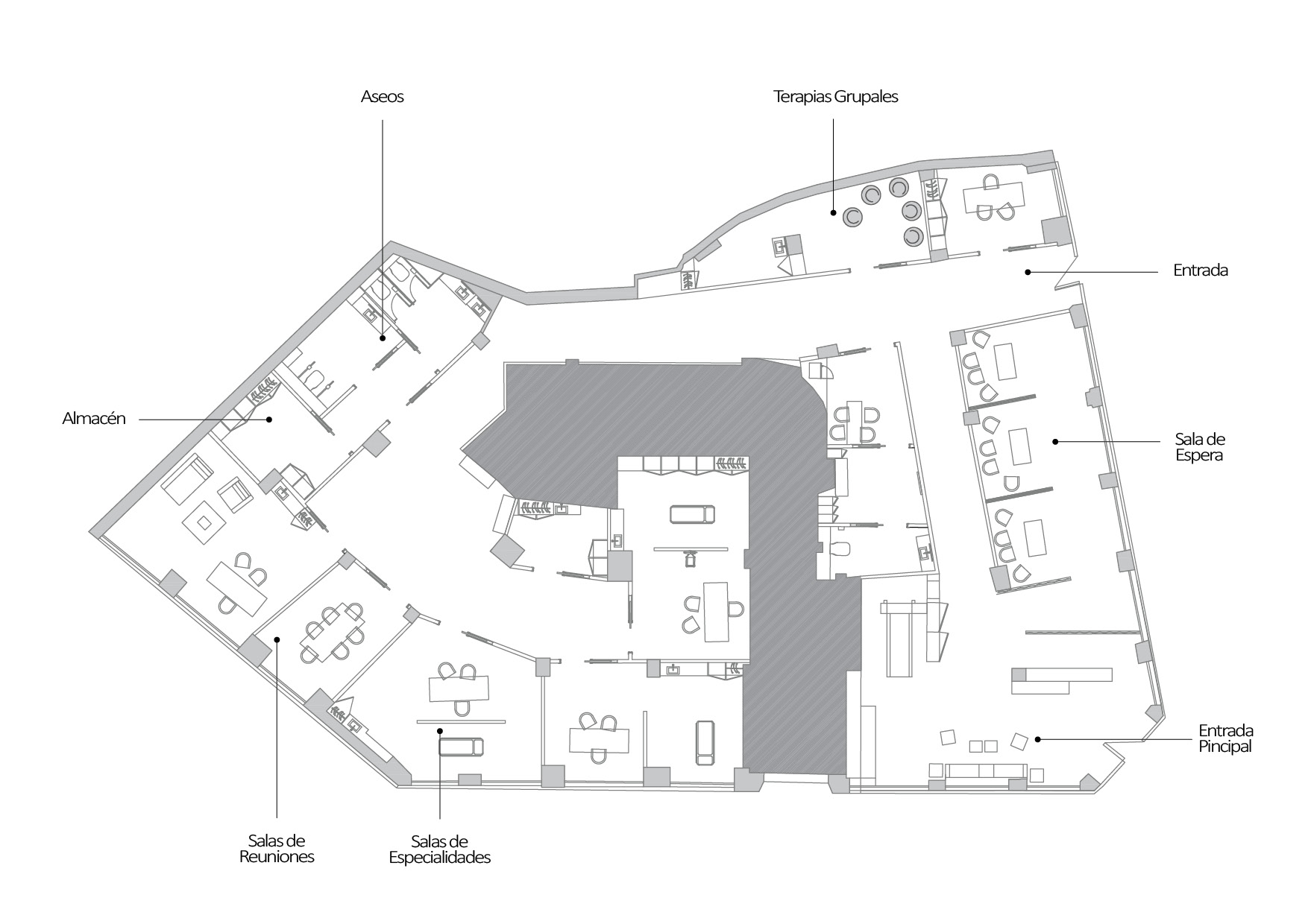
El diseño incluye una zona de espera para padres, independiente de la recepción, pensada como un espacio cómodo y tranquilo con áreas de lectura y descanso. En la recepción, se incorpora un pequeño espacio de juegos para que los niños se entretengan mientras esperan.
Conceptualmente, el proyecto explora el juego entre luces y sombras. La fachada está compuesta por módulos repetitivos que proyectan sombras variables según la luz natural.
Estos módulos se replican en interiores, junto con particiones y elementos de vidrio translúcido naranja, que generan continuidad visual y dinamismo.
Además, se utilizan telares traslúcidos para dividir sutilmente la recepción y la zona de espera, reforzando la sensación de ligereza y transparencia en todo el espacio.
DIBUJO DE LA RECEPCIÓN
DIBUJO DE ZONA DE JUEGOS
PLANTA DE DISTRIBUCIÓN
INFOGRAFÍAS 3D, PLANOS…







